Aller au contenu
Bureau
Projets
Expertise bâtiment
Expertise immmoblilière
Bureau
Projets
Expertise bâtiment
Expertise immmoblilière
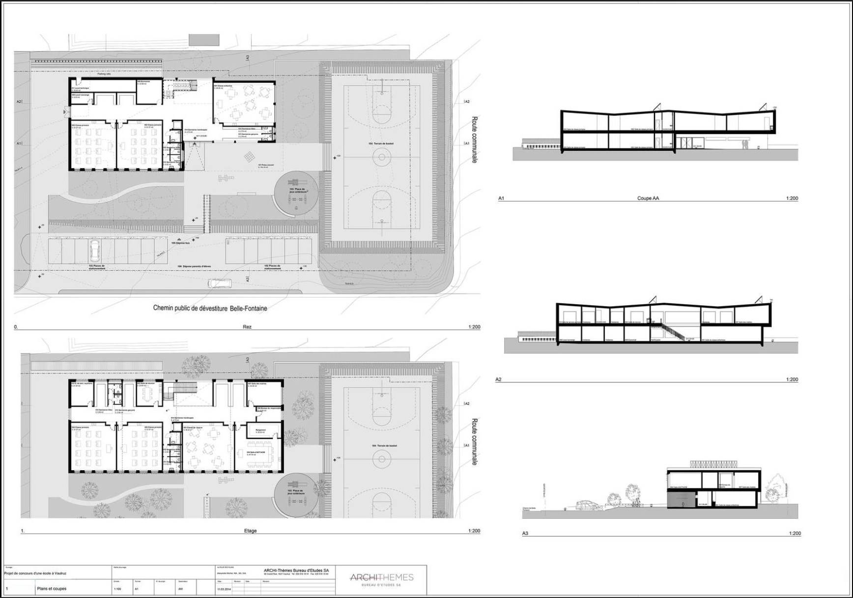
Concours d’une école primaire à Vaulruz
1627 Vaulruz
2015
Projets